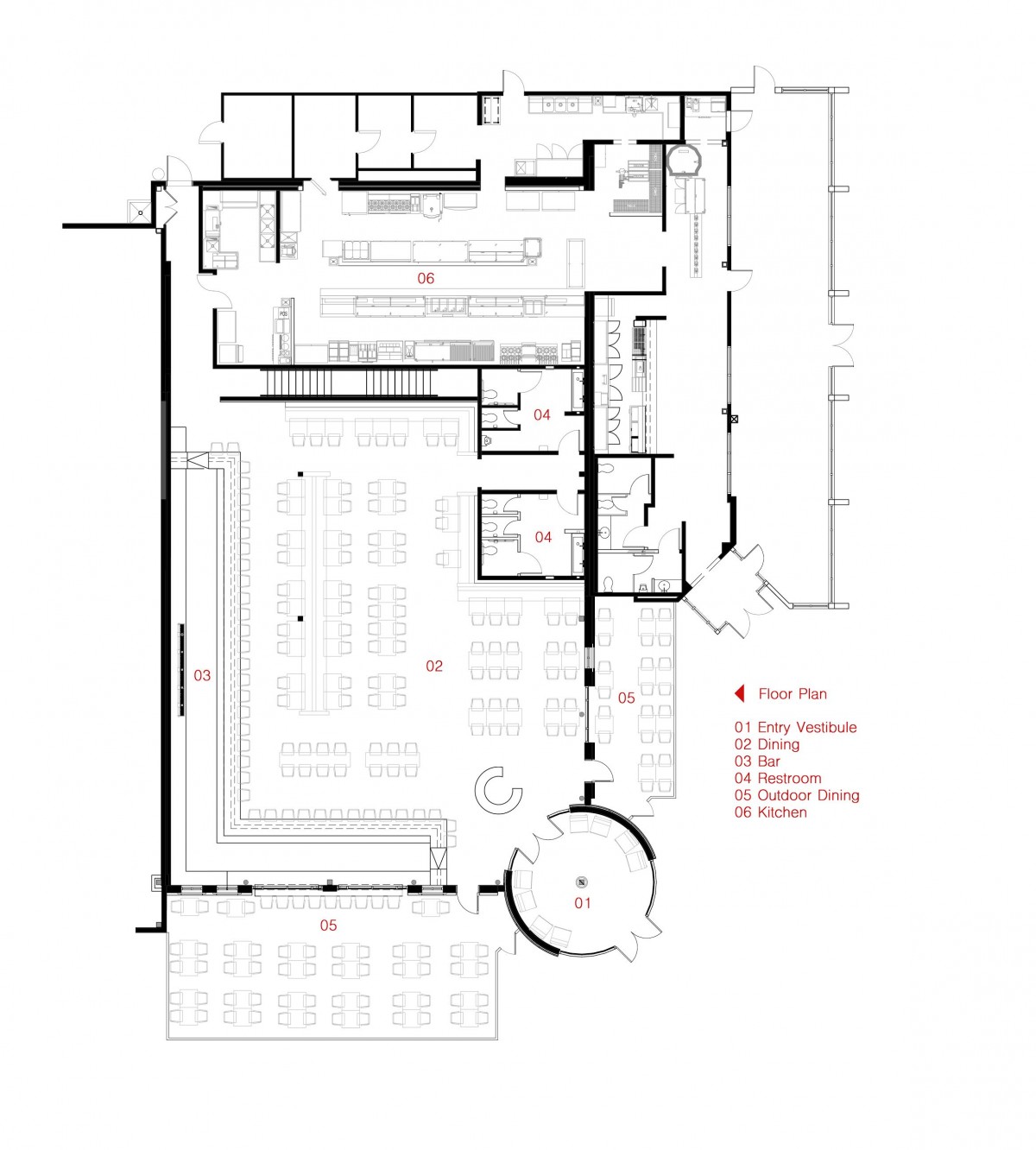
Myrtle Beach
Interior Renovation
7100 sf
Consultant to Tungsten Corporation
Located in Broadway at the Beach, American Tap House is a new gastropub with a rustic brewery concept that is fresh to the Myrtle Beach area. A combination of reclaimed brick walls with a rich wood plank ceiling create an overall casual and nostalgic ambiance. The American flag inspired art installation displays red, white, and blue bottles on a main focal wall for guests to see as they enter the restaurant. The back wall of the restaurant was utilized to emphasize the brand and features dramatic backlit reclaimed wood planks that boldly display the venue's name and logo. The extensive bar features a sleek metal and glass shelving system designed to display an abundance of bottles and act as a backdrop to the reclaimed rustic timbers that are suspended above the bar. Vintage exposed filament bulb lighting adds life to the space while distillery inspired copper pipes compliment the textural rustic finishes. Banquettes are upholstered in a bold red and feature deep diamond tufting for a touch of drama and color. The interior design for American Tap House represents a stylish yet relaxed and inviting atmosphere where families and friends can gather to enjoy craft beer and creative cuisine.
Project(s) reflects work completed at e3 studio.