Toggle navigation
843-455-4775
About
Projects
View All
Corporate
Hospitality
Restaurant/Retail
Contact
843-455-4775
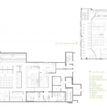
Wahlburgers
Project(s) reflects work completed at e3 studio.
Previous
All Projects
Next